Vendita €349,000 - Nuove Costruzioni, Residenziale, Villetta a schiera
Villini A Schiera
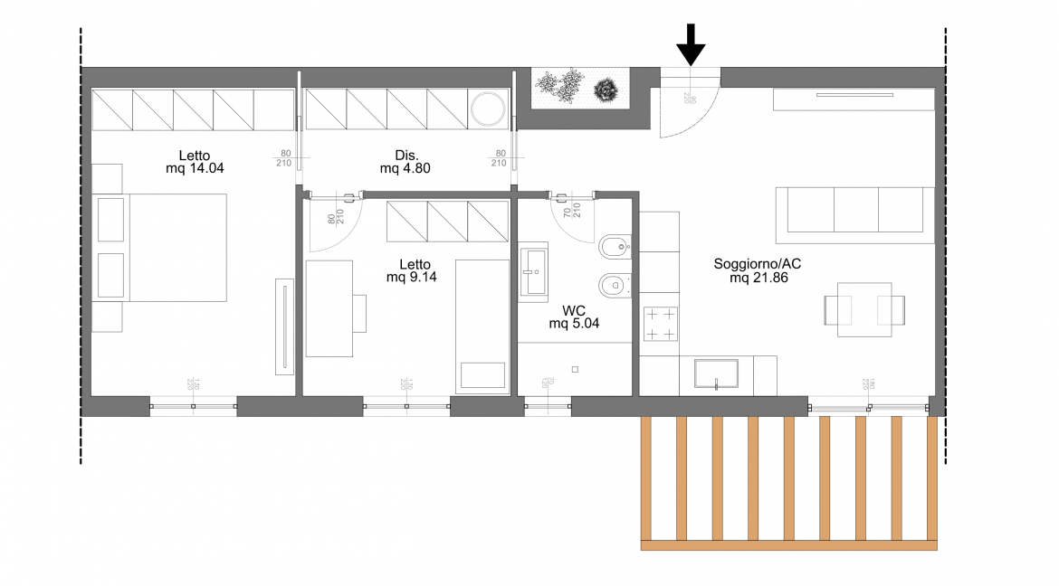
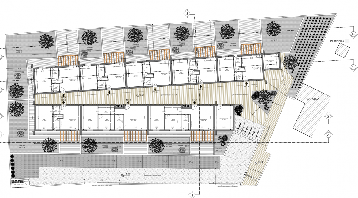
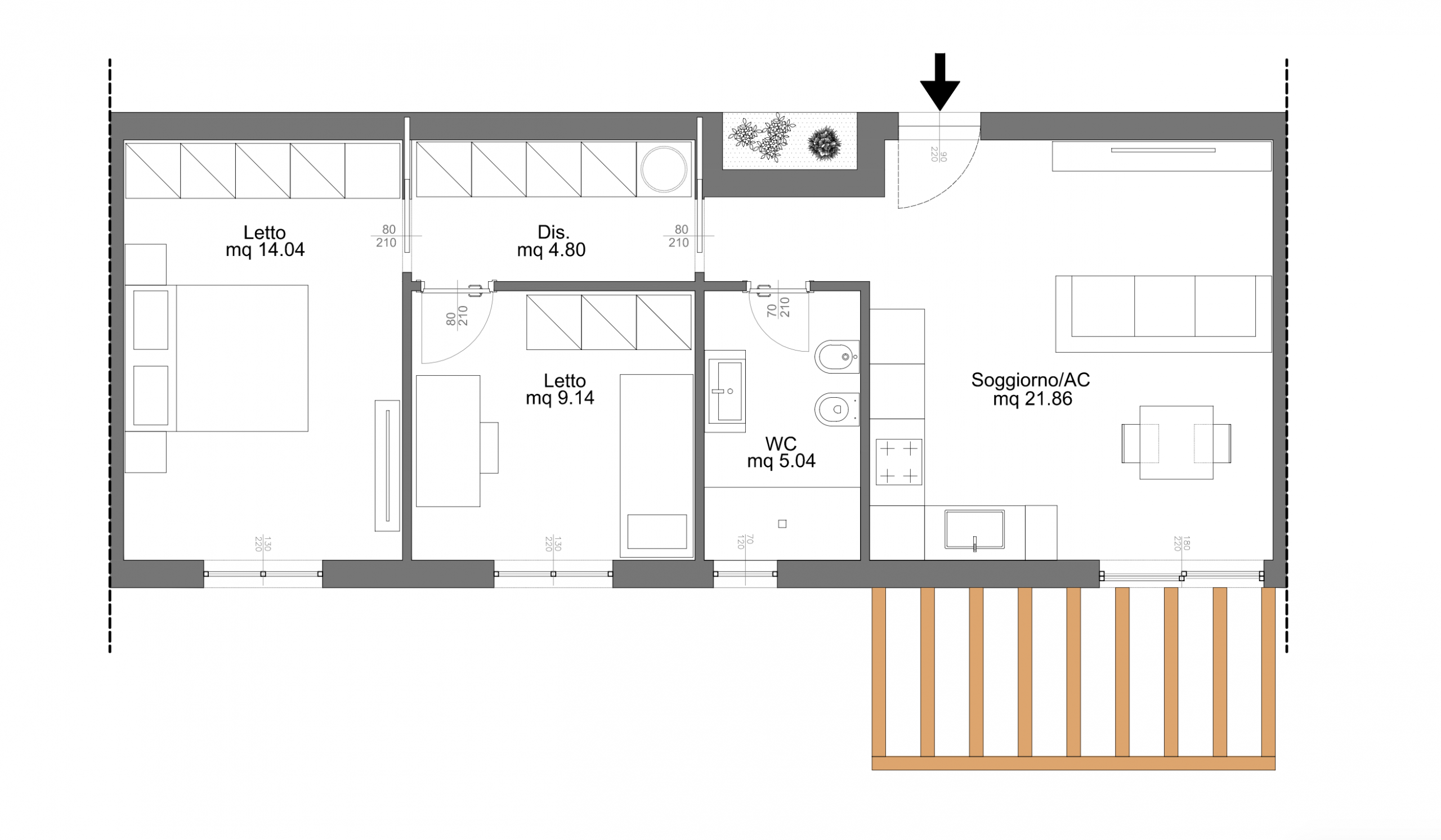
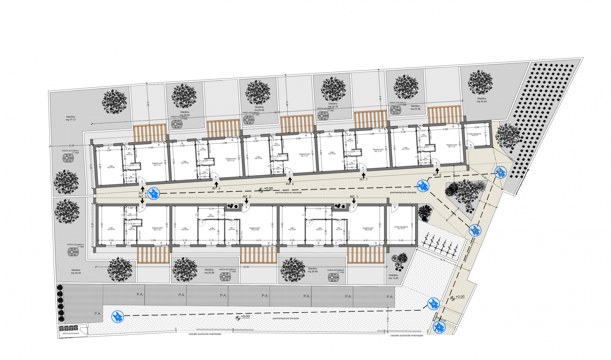
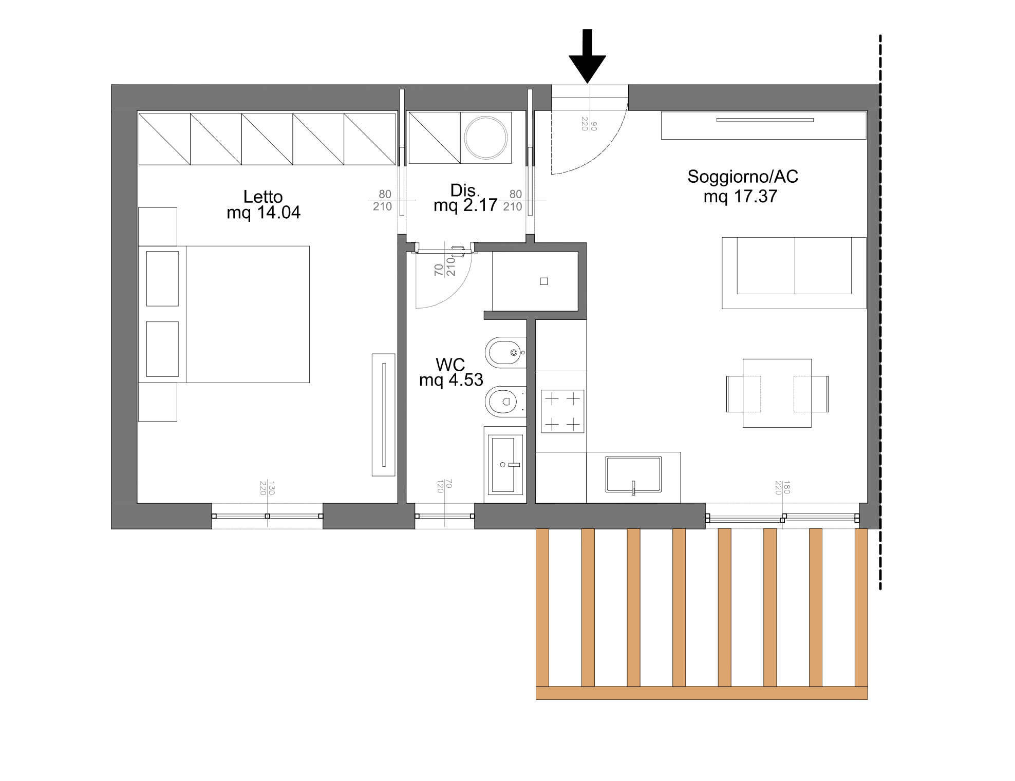
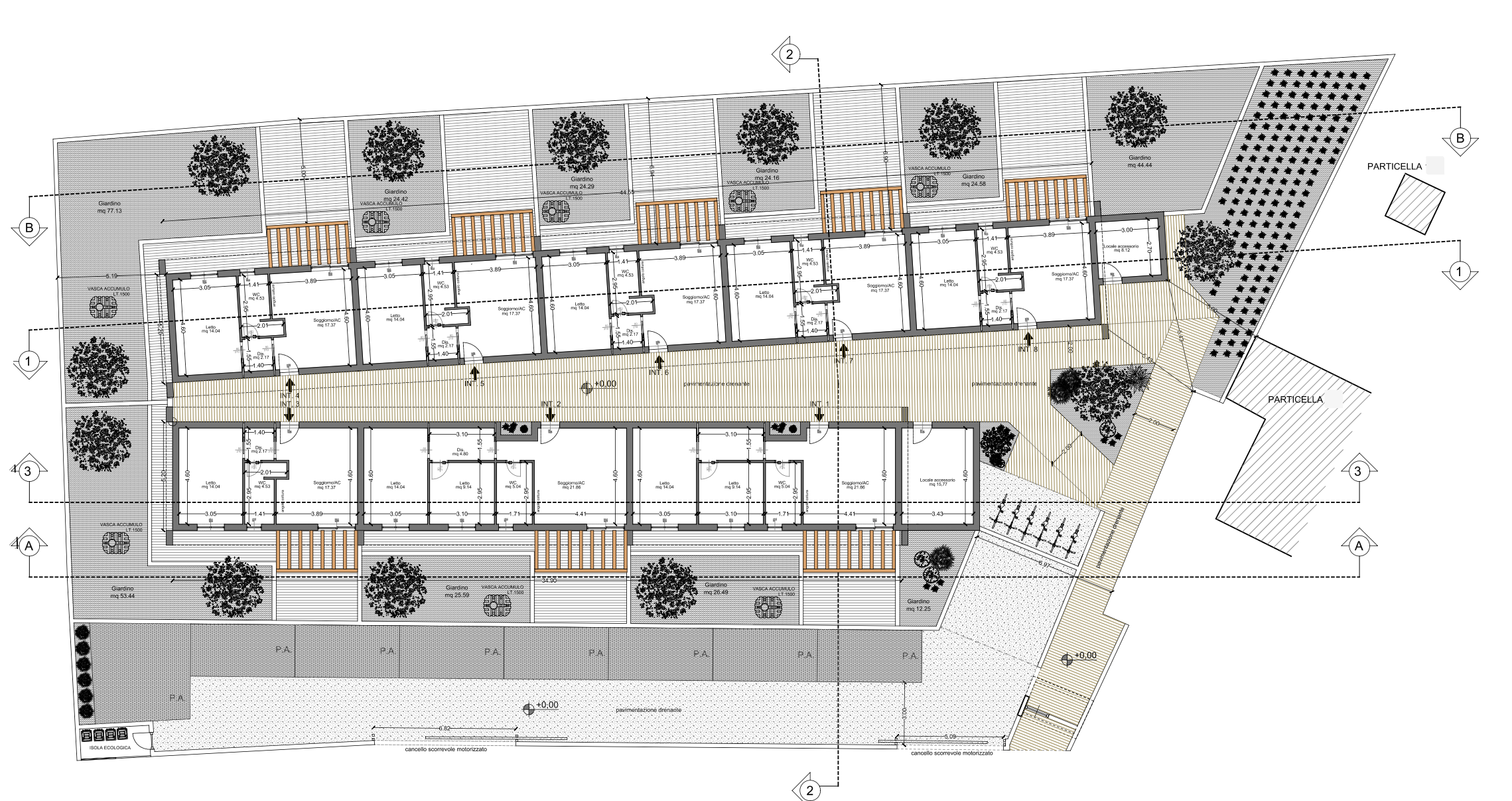
Tor Fiscale proponiamo in vendita villino a schiera su unico livello, composto da soggiorno con angolo cottura, camera matrimoniale, bagno, disimpegno, terrazzo e giardino. Comprensorio con cancello automatizzato e ampi spazi verdi condominiali, finiture di pregio. Tetto a doppia falda con tegole e pannelli fotovoltaici, infissi schuco o similari, parquet a listoni, vasca per il recupero acque piovane, riscaldamento e raffrescamento ad aria con pompe di calore ultima generazione. Immobili in classe Energetica A+ totalmente ecosostenibili. Possibilità di posto auto. Inizio cantiere giugno 2026- consegna 31.12.2027. Si valutano permute indirette. L’agenzia giusta per sentirsi a casa! I nostri uffici si trovano in Largo Appio Claudio 370 – 00174 Roma e sono aperti dal Lunedì al Venerdì dalle 9:00 alle 13:00 e dalle 15:00 alle 19:30 e il Sabato dalle 10:00 alle 13:00. Ci occupiamo da anni della vendita, permuta e della locazione degli immobili su tutto il territorio romano (appartamenti, uffici, negozi, magazzini…), altamente specializzati nella conoscenza dei valori degli immobili sia per comparazioni dirette che per calcoli estimativi. Forti dell’esperienza Ventennale nel campo immobiliare garantiamo serietà affidabilità e professionalità. Siamo a disposizione per una valutazione reale, gratuita e senza impegno del Vostro immobile. Non esitate a contattarci.














